Hiše Senožeti
Vaš dom med mestom in naravo.
Dobrodošli v Senožetih, očarljivem naselju v občini Dol pri Ljubljani, kjer se narava, kvaliteta bivanja in bližina prestolnice prepletajo v popolno harmonijo. Predstavljamo vam novo stanovanjsko sosesko s štirimi modernimi hišami, idealnimi za vse, ki si želite mirnega doma v zelenem okolju, a ne želite izgubiti stika z mestnim utripom.
Lokacija
Senožeti, Dol pri Ljubljani
Ljubljana – 17 km
AC izvoz Šentjakob – 11 km
Osnovna šola – 500 m
Trgovina – 600 m
Avtobus – 300 m
Vlak (Jevnica) – 1 km

















Le 17 km od Ljubljane in le 11 km od izvoza Šentjakob, se nahaja vaš bodoči dom. Avtobusna postaja je oddaljena 300 m, železniška postaja v Jevnici le 1 km. V bližini je osnovna šola, trgovine, zdravstvene storitve in številne možnosti za aktivno preživljanje prostega časa.
Občina Dol pri Ljubljani se uvršča med najkakovostnejša okolja za življenje v Sloveniji – z razvejano lokalno samooskrbo, številnimi kmetijami, športnimi površinami in živahnim kulturnim utripom.
Stanovanjske enote
Projekt obsega 2 samostojni hiši in 1 dvojček (2 enoti), zasnovane sodobno, funkcionalno in z mislijo na udobje.
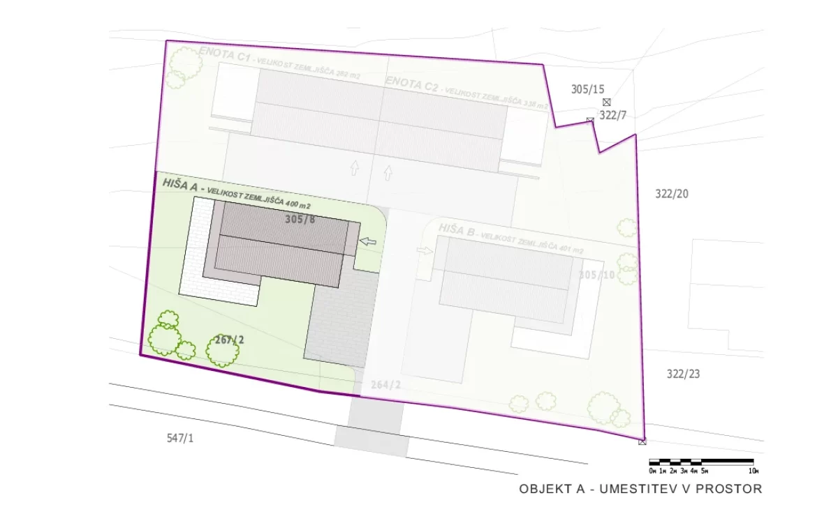
SAMOSTOJNA HIŠA A (P+N)
- 118 m² neto stanovanjske površine
- 400 m² lastnega zemljišča
- 3 parkirna mesta
- Število spalnic: 3, z možnostjo prilagoditve
- Število kopalnic: 1 + ločene sanitarije, z možnostjo prilagoditve
- Tlakovan dovoz, zatravljena okolica z avtohtonimi rastlinami
- Vgrajena okna, vrata, izdelana fasada
- Možnost dokončanja “na ključ” po vaših željah
https://www.nepremicnine.net/oglasi-prodaja/senozeti-hisa_7012620/























SAMOSTOJNA HIŠA B (P+N)
- 118 m² neto stanovanjske površine
- 401 m² lastnega zemljišča
- 3 parkirna mesta
- Število spalnic: 3, z možnostjo prilagoditve
- Število kopalnic: 1 + ločene sanitarije, z možnostjo prilagoditve
- Tlakovan dovoz, zatravljena okolica z avtohtonimi rastlinami
- Vgrajena okna, vrata, izdelana fasada
- Možnost dokončanja “na ključ” po vaših željah
https://www.nepremicnine.net/oglasi-prodaja/senozeti-hisa_7015373/
ENOTA DVOJČEK C1 (P+1+M)
- 175,71 m² neto stanovanjske površine
- 282 m² lastnega zemljišča
- Garaža za dva avtomobila + dodatno parkirno mesto na dovozu ob hiši, shramba
- Število spalnic: 3, z možnostjo prilagoditve
- Število kopalnic: 1 + ločene sanitarije, z možnostjo prilagoditve
- Tlakovane površine, zatravljena okolica
- Vgrajena okna, vrata, izdelana fasada
- Možnost dokončanja “na ključ” po vaših željah
https://www.nepremicnine.net/oglasi-prodaja/senozeti-hisa_7015312/
















ENOTA DVOJČEK C2 (P+1+M)
- 175,71 m² neto stanovanjske površine
- 338 m² lastnega zemljišča
- Garaža za dva avtomobila + dodatno parkirno mesto na dovozu ob hiši, shramba
- Število spalnic: 3, z možnostjo prilagoditve
- Število kopalnic: 1 + ločene sanitarije, z možnostjo prilagoditve
- Tlakovane površine, zatravljena okolica
- Vgrajena okna, vrata, izdelana fasada
- Možnost dokončanja “na ključ” po vaših željah
https://www.nepremicnine.net/oglasi-prodaja/senozeti-hisa_7012609/
Skupna značilnost vseh enot:
Možnost dogovora za notranjo izvedbo na ključ – materiali, barve, keramika in tehnična oprema po vaših željah.
Gradnja s poudarkom na kakovosti
Hiše bodo zgrajene z visoko kakovostnimi materiali: opečna gradnja, armiranobetonske konstrukcije, klasična ometana fasada v beli barvi in leseni detajli. Strehe so oblikovane moderno – kombinacija dvokapnic in ravnih streh.
Energetsko učinkovit objekt z možnostjo priklopa na toplotno črpalko zrak-voda ter lastno malo čistilno napravo.
Cene in nakup
Cena vsake enote (samostojna hiša ali dvojček) znaša 335.000 EUR (z DDV) v III. podaljšani gradbeni fazi.
Investitor ponuja možnost dokončanja notranjosti na ključ po dogovoru, s prilagoditvijo materialov in razporeditev po vaših željah.
POGOSTA VPRAŠANJA
Hiše bodo imele izdelano fasado, vgrajena okna in vhodna vrata, tlakovan dovoz, urejeno parcelo z zatravljeno okolico in zasaditvijo grmovnic.
Da, investitor nudi možnost izvedbe »na ključ« – z izborom notranjih materialov, keramike, parketov in sanitarne opreme po vaših željah.
Objekti bodo priključeni na javni vodovod, električno omrežje in telekomunikacijski sistem. Predvidena je tudi mala čistilna naprava.
Zaključek gradnje (III. PGF) je predviden v aprilu l. 2026.
Stopite v stik
Za več informacij, tlorise, vizualizacije in ogled nas kontaktirajte:
-
Nepremičninska agencija: MESTO NEPREMIČNIN d.o.o.
Podmiliščakova ulica 25 1000 Ljubljana - 031 390 539 (Nina Marovšek)
- 051 650 777 (Pisarna)
-
Investitor: KM-SEN4 d.o.o.
Bleiweisova cesta 30, 1000 Ljubljana